連接件模型
Connector Model
Connector Model
聯系APAS / Contact us
- 地址:天津市西青經濟技術開發區賽達國際工業城A3-2.
- 郵箱:lxc@apas.com.cn
- 電話:022-87920088
- 傳真:請聯系網絡管理員
- 郵編:300385
- 咨詢熱線:13702119190(24小時服務熱線)
連接件模型
/ Connector Model

4040鋁型材鑄鋁角件3D模型
產品描述 / Name
4040鋁型材鑄鋁角件是設計組裝工業鋁型材框架常用的緊固連接配件,物理強度高、實用性強,設計師可以下載鑄鋁角件數模進行框架的設計搭建;
022-87920099
可以根據需求進行設計加工,提供上門安裝服務;可以根據特殊需求進行鋁型材開模定制。
* 免費提供工業鋁型材選型手冊 →點擊咨詢
內容來源:http://m.hnwcls.com 作者:武將 發布日期:2020年03月18日 11時32分 閱讀次數:4766 次
| 4040鋁型材鑄鋁角件是組裝鋁型材框架最為常用的快速連接配件,主要用于加強被連接型材點的支撐力,也可以用作需要移動位置的鋁型材連接方式; |
![]() ![]()
|
| 4040鋁型材鑄鋁角件被廣泛應用的主要優勢在于操作簡單、實用性強,可以選擇T型螺栓及法蘭螺母即可實現快速緊固連接;但鑄鋁角件弊端在于韌性不相對較低,在低溫環境下受到較大外力時容易出現炸裂現象的發生; |
|
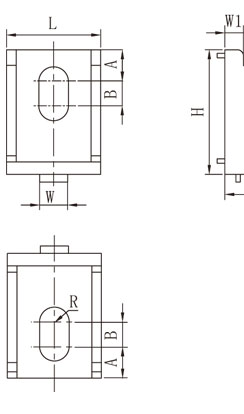
槽型規格
|
L(mm)
|
H(mm)
|
W(mm)
|
W1(mm)
|
A(mm)
|
B(mm)
|
R(mm)
|
材質
|
訂貨編號
|
|
槽8
|
35
|
40
|
6.5
|
8
|
13
|
13.5
|
4.5
|
鑄鋁
|
CE-SB4040-8
|
聯系APAS/ Contact us
天津艾普斯工業鋁型材股份有限公司
聯系電話:022-87920088
企業傳真:(避免惡意廣告)請聯系該企業網絡管理員
服務熱線:13702119190 (24小時服務熱線)
Q Q:534973906
企業郵箱: lxc@apas.com.cn
企業地址:天津市西青經濟技術開發區賽達國際工業城A3-2
聯系電話:022-87920088
企業傳真:(避免惡意廣告)請聯系該企業網絡管理員
服務熱線:13702119190 (24小時服務熱線)
Q Q:534973906
企業郵箱: lxc@apas.com.cn
企業地址:天津市西青經濟技術開發區賽達國際工業城A3-2
采購意向留言:* 為必填






.jpg)








QQ咨詢
電話聯系
聯系電話

在線留言
樣冊下載
